*** Single-Appartment mit Balkon in beliebter Wohnlage! ***

Objekt-Nr. 1844 – Wohnung zum Kauf in Lüdenscheid


Ansprechpartner

Firma Kuhbier Immobilien KG

Telefon: 02351-180980
Telefax: +49 2351 18 09 82

mail@kuhbier-immobilien.de

Kontakt aufnehmen

Eckdaten

Kaufpreis 69.000 €
Mieteinnahmen (Ist) 3.360 €
Adresse 58511 Lüdenscheid - Wohnlage Honsel / Schlittenbach
Wohnfläche ca. 51 m²
vermietbare Fläche ca. 51 m²

Beschreibung

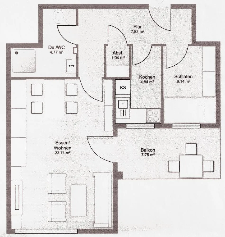
Die hier zum Verkauf stehende Eigentumswohnung befindet sich im Hochgeschoss einer gepflegten Eigentumswohnanlage.

Sie betreten die Wohnung über eine geräumige Diele mit Platz für eine Garderobe. Herzstück der Wohnung bildet das mit ca. 23 m² großzügige Wohn-Esszimmer mit Ausgang zum überdachten Balkon.

Hinzu kommen eine kleine Küche und ein Schlafraum sowie eine Abstellkammer. Das Bad ist raumhochgefliest und verfügt über eine Dusche, ein Waschbecken und WC.

Die Fenster sind mit Kunststoffrahmen, Isolierverglasung und Rollläden ausgestattet. 2018 wurden von einer Fachfirma Vinylböden in der Wohnung verlegt.

Die Wohnung ist vermietet.

Die hier veröffentlichten Fotos zeigen die Wohnung im Leerzustand vor der derzeitigen Vermietung!

Zur Wohnung gehört ein separater Kellerraum. Ein gemeinschaftlicher Wasch-und Trockenraum sowie ein Fahrradkeller stehen zur Verfügung.

Lagebeschreibung

Das Wohngebiet Honsel erfreut sich großer Beliebtheit bei Familien. Kindergärten, Schulen, Spielplatz und zahlreiche Einkaufsmöglichkeiten befinden sich in der Nähe. Das Naheinkaufszentrum Bräucken ist fußläufig erreichbar. Zur Lüdenscheider Innenstadt, aber auch die BAB-Anschlussstelle Lüd.-Mitte oder -Süd gelangen Sie in wenigen Fahrminuten. Eine regelmäßige Busanbindung ist ebenfalls gegeben. Die Bushaltestelle befindet sich nahe am Haus!

Käuferprovision zzgl. MwSt

3,57% des Kaufpreises inkl. Mehrwertsteuer

Ausstattung

Anzahl Badezimmer 1
Anzahl Balkone 1
Anzahl Schlafzimmer 1
Anzahl Zimmer 2
Bad mit Dusche
Baujahr 1979
Befeuerungsart Gas
Heizungsart Zentralheizung
Rollladen
Vermietet

Energieverbrauchsausweis

Endenergieverbrauch 154,40 kWh/(m²*a)
Energieverbrauch inkl. Warmwasser Nein
Befeuerungsart Gas
Heizungsart Zentralheizung
Baujahr (Energieausweis) 1979
Energieeffizienzklasse E
Gültig bis 01.10.2028
Energieausweis 2014
Energieausweis Ausstellungsdatum 2018-10-15

0200400+


Objekt-Nr. 1844 – Wohnung zum Kauf in Lüdenscheid

Zurück zu den Immobilienangeboten

Erfolg! Vielen Dank für Ihre Bewertung.

Fehler! Bitte füllen Sie alle Felder aus.